Login
Neubauhaus Velden am Wörthersee
Haus Kauf in Velden am Wörther See, Kärnten

 
Ansprechpartner:
Herr Marhold
+43660/555 08 75
wma@eigenheim-homes.at

Kurzübersicht   Immobilien Beschreibung

Referenz: 8258
Bundesland: Kärnten
Bezirk: 9220 Velden am Wörther See
Kaufpreis:
550.000,- EUR
Type: Haus/Kauf
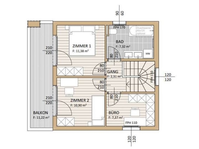
Wohnfläche: 90 m2
Grundfläche: 530 m2
Zimmer: 5
davon Schlafzimmer: 3
Badezimmer: 1
Balkon/Terrasse: JA
Keller:
Garage/Stellplatz: JA
Pool:
Aufzug:
Baujahr: 2026
Energie HHWB: 45
Energie Effizienz: B
Provision: PROVISIONSFREI
  Einfamilienhaus - Neubau - Lind ob Velden

Ihr neues zu Hause - Der Wörthersee zum greifen Nahe - Leben wo andere Urlaub machen dürfen.

NUR 4 Minuten vom Wörthersee entfernt - Ortsteil Lind ob Velden

SCHLÜSSELFERTIG - Provisionsfrei !!

Ein charmantes Haus das alles was Sie brauchen, um das wahre Familienleben zu genießen.
Mit 90 Quadratmetern Kompakter Wohnfläche, 2-3 Schlafzimmern, 2* WC, Vorraum, Speise+Technik bietet das Haus genügend Raum für Sie.

Der moderne offene Wohn-Koch-Essbereich ist ideal für gesellige Abende, das Badezimmer ist mit einer Dusche oder einer Badewanne ausgestattet.

Die lichtdurchfluteten Räume und das Parkett in den Gemeinschaftsräumen verleihen dem Haus einen eleganten Touch.

Entspannen Sie auf der Terrasse oder dem Balkon und genießen Sie Ihren eigenen Garten.

Carport oder Garage optional möglich
Möchten Sie eine individuell geplante Küche, auch kein Problem.
PV-Anlage optional erhältlich

Kaufpreis 550.000,- EUR INKLUSIVE GRUNDSTÜCK mit 530m2
SCHLÜSSELFERTIG
Anpassungen des Hausdesign etc. gerne möglich.
Es wird individuell gebaut .

Holzriegelbau, WSV, 3-fach Isolierglasfenster, Rollladen, Parkettböden, Luftwärmepumpe, etc.
Ziegelbau optional möglich

PROVISIONSFREI



Immobilien Lage
Für dieses Objekt steht DERZEIT leider KEINE LAGEBESCHREIBUNG zur Verfügung

Ausstattungsmerkmale
Eigengarten
Fussbodenheizung
Autoabstellplatz
Terrasse
Balkon
Badewanne
Dusche



Mehr Informationen über diese Immobilie anfordern

Zentrale Velden a.W.
Name: Herr Marhold
Telefon: +43660/555 08 75
email: wma@eigenheim-homes.at
 
 
 
 
 
 
Name:*
Telefon:*
email:*
Ihre Nachricht:*
Kontrolle 7+4 =




Newsletter bestellen

  Über uns   Kontakt   Nützliche Links  
  eigenheimreal.com - Eine gute Adresse für Immobilien in
- Kärnten -
- Steiermark -
- Niederösterreich -
- Burgenland -
- Wien -
seit über 15 Jahren.  Professionelle Beratung und ein verantwortungsvoller Umgang mit Ihrer Immobilie sind unsere ZWEI wichtigsten Prinzipien.  Das macht uns besonders! 

Wilhelm Michael Marhold
Ing. | Geschaeftsführer

weiterlesen >
  Eigenheimreal.com   Häufig gestellte Fragen  
    Keutschacherstr. 87   Sitemap  
    9220 Velden a. W.   Datenschutz  
        AGB`s  
    +43-6604378309   Einwilligungserklärung Datenschutz  
    wma@eigenheimreal.com   Verbraucherrechte FAGG  
           
    Impressum      
           
           
           
           
 
 
 
 
 
 
 
 
Voelkendorfer Strasse 26, Villach